Terrain 1798m2 - Libre de constructeur

Voir les 3 photos


Voir les 3 photos
Prix de départ : 130 000 €
vendredi 28 novembre À 20H00
Jours
Heures
Minutes
Secondes
Enchère progressive
N°enchère : P44303
Palier de l’enchère : 2 000 €
JE M’INSCRIS À L’ENCHÈRE
Une question sur ce bien ?
Contactez nousCaractéristiques
Terrain
DPE
Diagnostic de performance énergétique
Consommations énergétiques
A
B
C
D
E
F
G
kWhEP/m² .an
Non soumis au DPE
Émissions de gaz à effet de serre
A
B
C
D
E
F
G
kgeqCO2/m² .an
Non soumis au DPE
Description
? Vous rêvez de construire la maison parfaite dans un cadre paisible ?
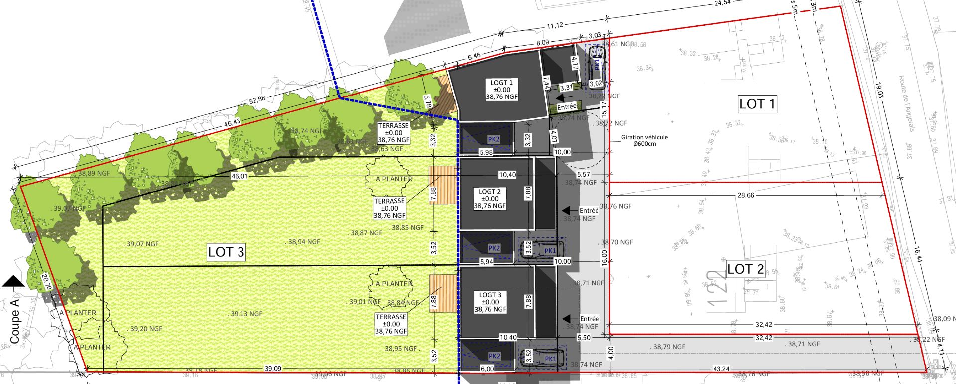
Découvrez ce superbe terrain de 1798 m² à Blain (44130), à seulement 35 km de Nantes ! ?
? Terrain en 2e rideau, idéal pour votre résidence ou un investissement locatif ?.
Divisible en 3 parcelles avec permis de construire déjà validé pour 3 maisons ??? !
N'attendez plus ! Contactez-nous pour plus d'informations
?? : nicolas.guitton@le10immo.com ou 06 36 36 69 30.
Le prix de départ indiqué comprend les honoraires à la charge de l’acquéreur :
6.92 % TTC du prix du bien hors honoraires.
Prix hors honoraires : 121 000 €
Les informations sur les risques auxquels ce bien est exposé sont disponibles sur le site Géorisques : www.georisques.gouv.fr
Emplacement

Votre contact pour ce bien :
- Nicolas
- GUITTON
- +33636366930
- nicolas.guitton@le10immo.com
LE 10 IMMO
Les Sorinières
+33636366930
nicolas.guitton@le10immo.com
Informations légales de l'agence
SAS ALADO au capital de 0 €
Carte professionelle CPI 4401 2023 000 000 074 délivrée par CCI Nantes Saint-Nazaire
Siége : 20 RTE DE BON ACQUET 44840 LES SORINIERES
SIREN : 920 704 228