Logo WinUp

T2 de 42 m2 proche commodités

T2 de 42 m2 proche commodités

Voir les 7 photos

T2 de 42 m2 proche commodités
T2 de 42 m2 proche commodités
T2 de 42 m2 proche commodités


Voir les 7 photos

Prix de départ : 129 000 €

mardi 28 avril À 20H00

28

Jours

20

Heures

00

Minutes

00

Secondes

Enchère progressive

N°enchère : P44335

Palier de l’enchère : 2 500 €

JE M’INSCRIS À L’ENCHÈRE
LAFONT'IMMO

Une question sur ce bien ?

Contactez nous

Caractéristiques

Appartement

2 Pièces

1 Chambre

1 Salle de bain

42 m²

1 Parking

DPE

Diagnostic de performance énergétique

Consommations énergétiques

A

B

C

D

E

F

G

0.00
kWhEP/m² .an

Émissions de gaz à effet de serre

A

B

C

D

E

F

G

0.00
kgeqCO2/m² .an

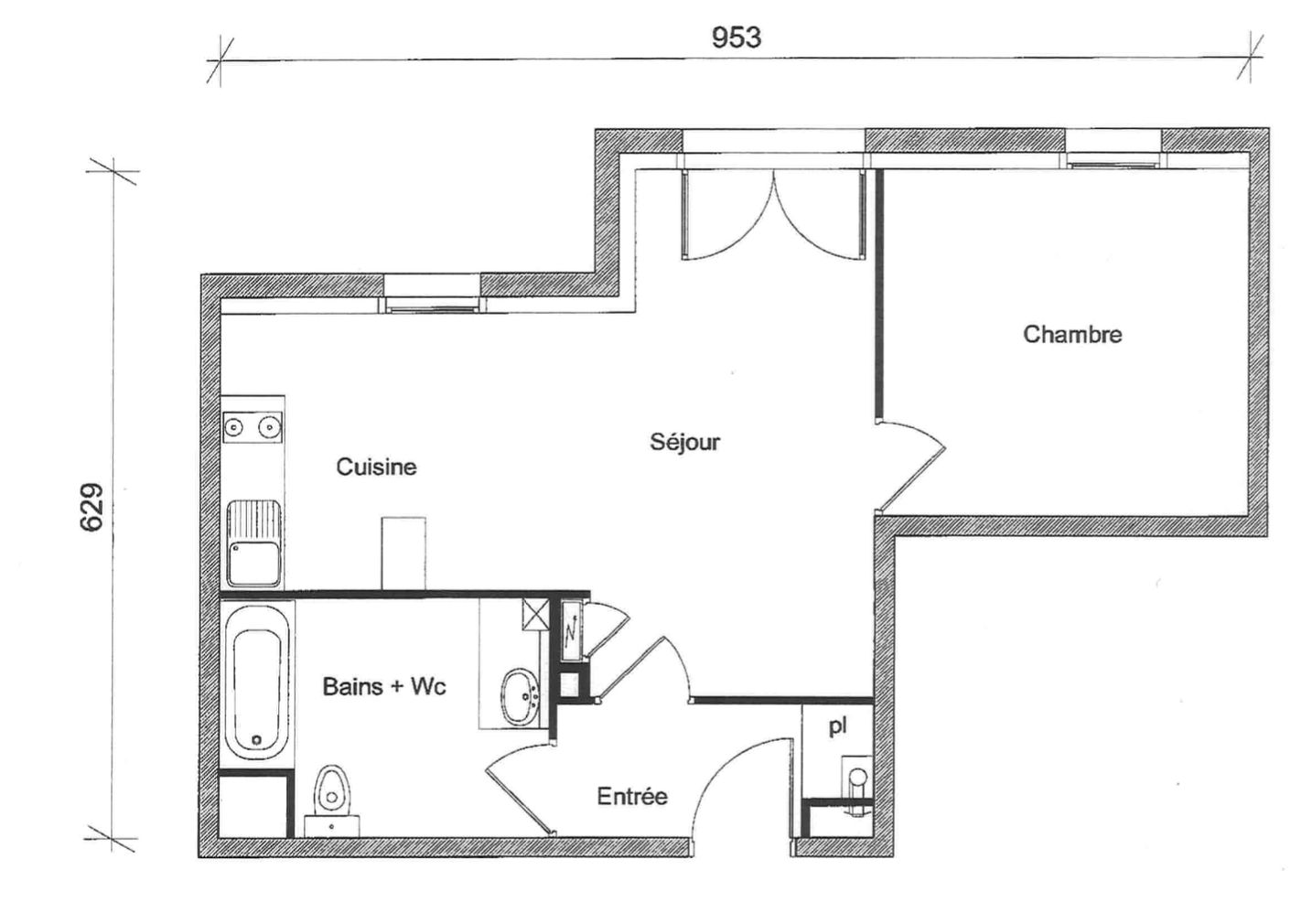
Description

T2 - SAINT-SEBASTIEN-SUR-LOIRE - proche transports et commodités. 

Idéalement situé à proximité immédiate des transports, tout en étant au calme, découvrez cet appartement T2 de 42 m², au troisième étage d'une résidence récente, bien entretenue et équipée d'un ascenseur.

Il comprend : une entrée indépendante avec placard, une pièce de vie lumineuse d'environ 22 m², avec cuisine ouverte, bénéficiant d'une vue dégagée, une salle de bains avec WC et espaces de rangement, ainsi qu'une chambre de 11 m². 

Un stationnement privatif extérieur et sécurisé complète ce bien.
Local vélo sécurisé et espace vert. 

Situé à : 
- 5 minutes à pied de Auchan 
- 3 minutes à pied du tram-train (gare Frêne Rond)
- 10-15 minutes à pied de l'arrêt de busway Châpeau Verni 
- Ligne 42 en bas de l'immeuble

Une belle opportunité à ne pas manquer !

Visite virtuelle de disponible sur demande. 

Contactez l'agence Guy Hoquet de Vertou pour plus d'informations ou pour organiser une visite ! 

Les honoraires d’agence sont à la charge du vendeur

À propos de la copropriété : Pas de procédure en cours
Nombre de lots : 51
Charges prévisionnelles annuelles : 840 €

Les informations sur les risques auxquels ce bien est exposé sont disponibles sur le site Géorisques : www.georisques.gouv.fr

Emplacement

293 Route de Clisson,
44230 Saint-Sébastien-sur-Loire

Situé à : 
- 5 minutes à pied de Auchan 
- 3 minutes à pied du tram-train (gare Frêne Rond)
- 10-15 minutes à pied de l'arrêt de busway Châpeau Verni 
- Ligne 42 en bas de l'immeuble

Explorer le quartier
LAFONT'IMMO

Votre contact pour ce bien :

  • Juliette
  • COGNAUD
  • +33771668783
  • juliette.cognaud@guyhoquet.com

LAFONT'IMMO

344 Route de Clisson
44120 Vertou

+33249621496

vertou-stsebastien@guyhoquet.com

Barème | Site web