Logo WinUp

Tènement immobilier - Challes les eaux

Tènement immobilier - Challes les eaux

Voir les 18 photos

Tènement immobilier - Challes les eaux
Tènement immobilier - Challes les eaux
Tènement immobilier - Challes les eaux


Voir les 18 photos

Prix de départ : 240 000 €

jeudi 5 mars À 19H00

05

Jours

19

Heures

00

Minutes

00

Secondes

Enchère progressive

N°enchère : P7359

Palier de l’enchère : 5 000 €

JE M’INSCRIS À L’ENCHÈRE
GUY HOQUET CHAMBÉRY

Une question sur ce bien ?

Contactez nous

Caractéristiques

Maison

6 Pièces

4 Chambres

3 Salles de bain

115 m²

262 m²

1 Garage

DPE

Diagnostic de performance énergétique

Consommations énergétiques

A

B

C

D

E

F

G

321.00
kWhEP/m² .an

Émissions de gaz à effet de serre

A

B

C

D

E

F

G

12.20
kgeqCO2/m² .an

Description

Challes les eaux centre, Tènement immobilier 96 m² habitable (115 m² utiles hors sous-sol)  composé de 3 logements au total et établi sur une parcelle de terrain de 264 m² : 
Une maison divisée en 2 appartements  + garage ET  une annexe indépendante aménagée selon la description suivante :
1/ DANS LA MAISON :
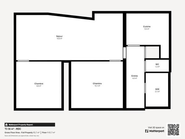
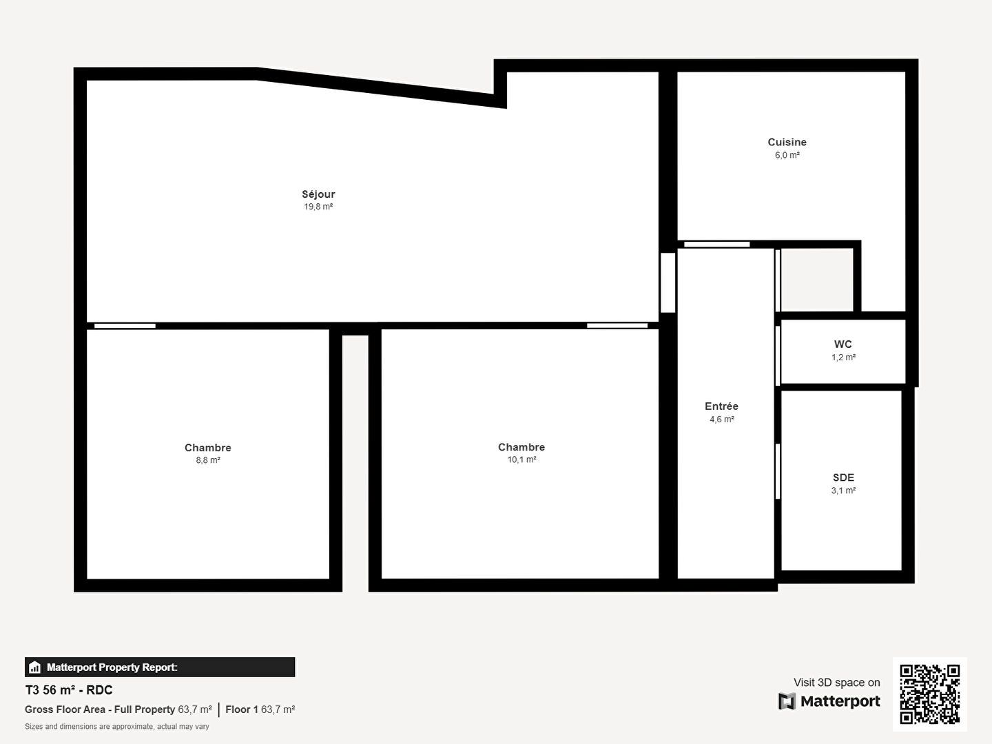
- Un T3 de 56,2 m² comprenant une entrée, un séjour, une cuisine, deux chambres, une salle d'eau et un wc. Un jardin.
- Un T1 de 21 m² (38,4 m² au sol) comprenant : une entrée, une cuisine, une salle d'eau / wc et une pièce principale à usage de chambre et séjour. Il dispose également d'une terrasse privative.
- Sous-sol total à usage de garage et de remise / cave.

2/ DANS L'ANNEXE :
- Un studio de de 19,2 avec une pièce principale, un coin cuisine et une salle d'eau / wc. Terrasse privative.

Cet ensemble immobilier situé à 200 m du casino et à 5 minutes du centre ville de Challes les eaux pourrait être une opportunité intéressante pour un investisseur souhaitant réaliser des travaux. Il pourrait également convenir pour un usage mixte de résidence principale et investissement locatif.

Les honoraires d’agence sont à la charge du vendeur

Les informations sur les risques auxquels ce bien est exposé sont disponibles sur le site Géorisques : www.georisques.gouv.fr

Emplacement

75 Rue du Docteur Rauge,
73190 Challes-les-Eaux

Environnement résidentiel à deux pas du casino et du centre ville de Challes les eaux 

Explorer le quartier
GUY HOQUET CHAMBÉRY

Votre contact pour ce bien :

  • Amaury
  • DEWIT VAN STYVENDAEL
  • +336 63 13 68 10
  • a.vanstyvendael@guyhoquet.com

GUY HOQUET CHAMBÉRY

27 Rue Saint-Réal
73000 Chambéry

+334 79 33 89 49

chambery@guyhoquet.com

Barème | Site web